GBK 001–003
| GBK 001–003 / ČSD-Baureihe 514.1 | |
|---|---|
GBK 001
|
|
| Nummerierung: | GBK 001–003 ČSD 514.101–103 |
| Anzahl: | 3 |
| Hersteller: | BMMF, Prag. |
| Baujahr(e): | 1912–1914 |
| Achsformel: | E n2t |
| Spurweite: | 1435 mm (Normalspur) |
| Länge über Puffer: | 11.680 mm |
| Höhe: | 4.620 mm |
| Breite: | 3.040 mm |
| Fester Radstand: | 2.700 mm |
| Gesamtradstand: | 5.500 mm |
| Kleinster bef. Halbmesser: | 100 m |
| Leermasse: | 55,0 t |
| Dienstmasse: | 72,1 t |
| Höchstgeschwindigkeit: | 45 km/h |
| Anfahrzugkraft: | 12.000 kp |
| Treibraddurchmesser: | 1.175 mm |
| Steuerungsart: | Heusinger-Walschaerts |
| Zylinderanzahl: | 2 |
| Zylinderdurchmesser: | 520 mm |
| Kolbenhub: | 620 mm |
| Kesselüberdruck: | 13 bar |
| Anzahl der Heizrohre: | 264 |
| Rostfläche: | 3,74 m² |
| Strahlungsheizfläche: | 12,80 m² |
| Rohrheizfläche: | 172,51 m² (wasserberührt) |
| Verdampfungsheizfläche: | 185,31 m² |
| Wasservorrat: | 7,5 m³ |
| Brennstoffvorrat: | 4,3 m³ |
| Bremse: | Vakuumbremse Bauart Hardy |
| Geschwindigkeitsmesser: | System Haushälter |
| Besonderheiten: | Drucklufteinrichtung zur selbsttätigen Entladung der Wagen |
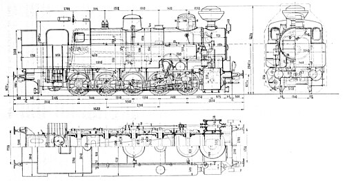
Die GBK 001–003 waren Tenderlokomotiven der Gewerkschaft Brucher Kohlenwerke für die Beförderung der Sandbahnzüge auf der Brucher Sandbahn. Die drei Lokomotiven waren die einzigen fünffach gekuppelten Tenderlokomotiven auf dem Gebiet Österreich-Ungarns.
Geschichte
Die Gewerkschaft Brucher Kohlenwerke benötigte für ihre Sandbahn leistungsfähige Lokomotiven mit geringem Achsdruck von 14,5 t.
Die Erste Böhmisch-Mährische Maschinenfabrik in Prag entwarf dementsprechend eine fünffach gekuppelte Tenderlokomotive, bei der, um einen befahrbaren Kurvenradius von 100 m zu ermöglichen, nur die zweite, dritte und vierte Kuppelachse fest gelagert waren. Die erste und fünfte Kuppelachse waren um 26 mm axial verschiebbar, was bei einem Gesamtradstand von 5.500 mm zu einem festen Radstand von 2.700 mm führte. Der symmetrische Aufbau gestattete einen gleichermaßen guten Einsatz in beiden Fahrtrichtungen.
Zur Befeuerung der Lokomotiven war Braunkohle vorgesehen. Ein typisches äußerliches Merkmal dafür ist der mächtige Funkenfänger nach Bauart der ATE.
Um die Wagen, mit denen der Sand transportiert wurde, selbsttätig zu entladen, verfügten die Lokomotiven über eine Drucklufteinrichtung.
Bei den Brucher Kohlenwerken erhielten die Lokomotiven die Nummern 001 bis 003. Eine Einordnung der Lokomotiven ins Nummernschema der Aussig-Teplitzer Eisenbahn – die den Betrieb der Sandbahn führte – erfolgte nicht. Nach der Verstaatlichung der ATE (1924) gab ihnen die Tschechoslowakische Staatsbahn ČSD die neue Reihenbezeichnung 514.1.
Literatur
- Die Lokomotive, S. 106–110, 1912.
- Karel Zeithammer: Lokomotivy Ústecko-teplické dráhy. Vydavatelství dopravní literatury, Litoměřice 2011, ISBN 978-80-86765-19-8.
Weblinks
- eine ausgemusterte 514.1 aufgespielt auf k-report.net
License Information of Images on page#
| Image Description | Credit | Artist | License Name | File |
|---|---|---|---|---|
| Diagramm der GBK 001–003 der Gewerkschaft der Brucher Kohlenwerke | Die Lokomotive, 1912 S. 106, freigegeben per Projekt Anno der ÖNB | unbekannt | Datei:GBK 1-3 Diag.jpg | |
| GBK 001 der Gerwerkschaft der Brucher Kohlenwerke | Die Lokomotive, 1912 S. 106, freigegeben per Projekt Anno der ÖNB | unbekannt | Datei:GBK 1.jpg |

