Reformierte Stadtkirche (Wien)
Die Reformierte Stadtkirche ist ein Kirchengebäude der Evangelischen Kirche Helvetischen Bekenntnisses in Österreich im 1. Wiener Gemeindebezirk Innere Stadt, Dorotheergasse 16.
Die an der Ecke eines von schmalen Altstadtgassen gebildeten Häuserblocks gelegene Kirche mit zugehörigem Pfarrhaus wurde als Toleranzbethaus der Wiener reformierten Pfarrgemeinde erbaut, die sich 1782 infolge des Toleranzpatents konstituierte. Der Architekt des an der Stelle eines aufgelassenen Klosters von 1783 bis 1784 errichteten klassizistischen Gebäudekomplexes war Gottlieb Nigelli. Bei einem 1887 nach Plänen von Ignaz Sowinski durchgeführten Umbau erhielt die Reformierte Stadtkirche eine neobarocke Einturmfassade. Das Kircheninnere ist entsprechend der reformierten Auslegung des Zweiten Gebots bilderlos.
Die Reformierte Stadtkirche ist der Sitz der Evangelischen Pfarrgemeinde H. B. Innere Stadt und der Evangelischen Kirche H. B. in Österreich. Daneben beherbergt die Kirche mehrere fremdsprachige Gottesdienstgemeinden, die rechtlich unterschiedlich organisiert sind, und ist ein Kulturveranstaltungsort.
Die Kirche steht unter Denkmalschutz.
Geschichte
Vorgeschichte
Evangelische Gottesdienste in Wien waren bis zum 1781 erlassenen Toleranzpatent Kaiser Josephs II. verboten. In der Zeit der Gegenreformation hielt sich der Geheimprotestantismus in Österreich eher in entlegeneren Gegenden. Eine trotz Protesten der Wiener Erzbischöfe staatlich geduldete Ausnahme waren die reformierten Gottesdienste in den Räumen der niederländischen Gesandtschaft in Wien. Diese Gottesdienste waren auch für die Wiener Bevölkerung zugänglich. Die Predigten wurden in deutscher Sprache gehalten. Der erste namentlich bekannte Gesandtschaftsprediger war Philipp Otto Vietor, der von 1671 bis 1673 in Wien wirkte.[1]
Die Gottesdienstgemeinschaft der niederländischen Gesandtschaft bildete die Keimzelle für die Wiener reformierte Gemeinde (H. B.), die sich nach dem Toleranzpatent am 2. März 1782 konstituierte. Zum ersten Pfarrer bestimmte die Gemeinde den bisherigen Gesandtschaftsprediger Carl Wilhelm Hilchenbach.[2] Am 13. März 1782 kaufte die Gemeinde um 23.900 Gulden die Wirtschaftsgebäude des ehemaligen Königinklosters, um an deren Stelle ein Toleranzbethaus mit Pfarrhaus zu errichten.[3] Das Kloster, das laut einer zeitgenössischen Beschreibung des Reiseschriftstellers Friedrich Nicolai ein „elendes Ansehen“[4] aufwies, hatte zu den ersten gezählt, die im Zuge der josephinischen Kirchenreform aufgelöst worden waren. Die Wiener lutherische Gemeinde (A. B.) war wie die reformierte infolge des Toleranzpatents gegründet worden. Sie erwarb die an die Wirtschaftsgebäude anschließende ehemalige Klosterkirche, die zur Lutherischen Stadtkirche umgebaut wurde. Die Wirtschaftsgebäude wurden abgerissen.[3] Mit der Planung des reformierten Bethauses wurde Gottlieb Nigelli betraut, ein Unterarchitekt im Hofbauamt und Protegé des Staatskanzlers Wenzel Kaunitz. Nigelli war bei der Auftragsvergabe noch kein anerkannter und erfahrener Architekt.[5]
Baugeschichte
Errichtung als Toleranzbethaus (1783–1784) und erste Adaptierungen
Der Grundstein für das Toleranzbethaus wurde am 26. März 1783 gelegt. Gemäß den Bestimmungen des Toleranzpatents durfte das Gebäude von außen nicht als Kirche erkennbar sein und keinen straßenseitigen Eingang aufweisen. Nigelli gestaltete die Straßenfassade deshalb nach Art eines einfachen Wohnhauses und verbarg die beiden Hauptportale in einem von der Gasse nicht einsehbaren Innenhof.[3] Bei der Gestaltung des Innenraums war der Architekt freier und wählte einen für seine Zeit fortschrittlichen, klassizistischen Stil.[5] Am 25. Dezember 1784 wurde das Bethaus eingeweiht.[3]
Der Industrielle und Bankier Johann von Fries, der den größten finanziellen Beitrag für die Errichtung des Bethauses geleistet hatte,[6] ließ zur gleichen Zeit auf einer anderen Parzelle des ehemaligen Königinklosters das Palais Fries-Pallavicini erbauen. Der Architekt des klassizistischen Palais war Johann Ferdinand Hetzendorf von Hohenberg, der Vorgesetzte Nigellis im Hofbauamt. Um die künstlerische Qualität der Neubauten entbrannte zwischen den Anhängern beider Architekten eine in mehreren Zeitschriften und Flugblättern geführte Kontroverse. Am Palais Fries-Pallavicini wurden die ungewöhnlichen Proportionen der Außenseite und die prunkvollen Karyatiden Franz Anton von Zauners beim Hauptportal kritisiert – „so scheint die Absicht des Architekten gieng geflissentlich dahin, das Auge vom Wesentlichen des Gebäudes abzuziehen um die Fehler des Ganzen nicht wahrzunehmen.“[7] Demgegenüber sei beim reformierten Bethaus die schwere Aufgabe gelungen, „die Linie zwischen ausschweifender Pracht und roher Einfalt zu ziehen; und wehe dem Architekten, der nicht Philosoph genug ist, bevor er das Reißzeug zur Hand nimmt.“[8] Dem anonymen Autor dieser Zeilen, vermutlich Nigelli selbst, wurde gleichfalls anonym und vermutlich aus Hohenbergs Feder geantwortet, er sei „Wiens Trasyllus“,[9] in Anspielung auf jenen antiken Philosophen, der sich selbst moralisch diskreditierte, indem er mit Kaiser Tiberius eine enge Freundschaft pflegte. Hohenberg ließ Nigelli infolge der Kontroverse aus Wien in die Provinzial-Baudirektion nach Brünn versetzen.[5]
Die reformierte und die lutherische Gemeinde in Wien gründeten 1794 eine gemeinsame Schule, deren Schulräume sich ursprünglich in den Pfarrhäusern der beiden Gemeinden befanden, die durch einen später wieder zugemauerten Durchbruch der Feuermauer im ersten Stock miteinander verbunden waren. Seit 1862 ist die Schule in einem Gebäude am Karlsplatz untergebracht.[10]
Erzherzogin Henriette von Österreich, eine geborene Prinzessin von Nassau-Weilburg, behielt auch nach ihrer Heirat mit Erzherzog Karl von Österreich im Jahr 1815 und ihrem Umzug nach Wien ihren reformierten Glauben bei. Es galt einer Erzherzogin allerdings als unwürdig, beim Gottesdienstbesuch eine Hintertür in einem Innenhof verwenden zu müssen. Der Hofarchitekt Johann Amann erhielt daher noch 1815 die Genehmigung für eine bauliche Lösung, die den Einschränkungen des Toleranzpatents Rechnung trug. Er ließ ein Tor in der straßenseitigen Seitenfassade des Bethauses durchbrechen, das zunächst in einen Zwischengang führte, der als nicht dem eigentlichen Sakralraum zugehörig deklariert wurde. Auch durfte das sogenannte Henriettentor ausschließlich von der Erzherzogin genutzt werden.[11] Im Sommer des Jahres 1830, ein halbes Jahr nach Henriettes Tod, wurde das Tor wieder vermauert.[11]
Umbau von 1887
Das Protestantenpatent von 1861 räumte den Evangelischen in Österreich weitergehende Rechte als das 80 Jahre zuvor erlassene Toleranzpatent ein. So war es nun möglich, dem Bethaus auch von außen das Aussehen einer Kirche zu geben. Den Beschluss zu einer entsprechenden Umgestaltung fasste die Gemeindeleitung schließlich erst im Jahr 1885 nach langjährigen Beratungen.[12] Neben der äußeren Sichtbarmachung der Kirche sollte auch das Pfarrhaus den Wohnansprüchen der Zeit entsprechend adaptiert werden.[13] Aus einer öffentlichen Ausschreibung ging 1887 der Architekt Ignaz Sowinski als Sieger hervor.[12] Sowinski, ein Schüler Heinrich von Ferstels, stand erst am Beginn seiner Karriere.[14]
Die Bauarbeiten begannen am 8. August 1887.[13] Das Äußere des Gebäudes wurde dabei völlig verändert und im neobarocken Stil gestaltet. Das reformierte Bethaus wurde zur ersten evangelischen Kirche Wiens mit einem Kirchturm.[15] Sowinski versah die nunmehr neobarocke Hauptfassade zur Dorotheergasse außerdem mit einem neuen Hauptportal.[13] Das Neobarock entwickelte sich, theoretisch untermauert durch den Kunsthistoriker Albert Ilg,[16] in den 1880er Jahren zunehmend zu einem österreichischen „Nationalstil“.[14] Auch die Seitenfassade zur Stallburggasse wurde neu gestaltet.
Der neue Haupteingang machte eine Umgestaltung des Innenraums erforderlich. Die Positionen von Kanzel und Orgel wurden getauscht und die Einrichtung des Kircheninneren in der Folge um 180 Grad gedreht. Im Zuge dessen entstand über dem Hauptportal eine neue Orgelempore in der ursprünglichen Apsis. Die bestehende rechtsseitige Empore wurde erweitert[13] und die Gesamtanzahl der Sitzplätze auf 205 erhöht.[15] Das Pfarrhaus behielt weitgehend seine bisherige äußere Erscheinungsform, während in seinen Innenräumen bauliche Adaptierungen vorgenommen wurden. Auf Grund feuchter Wände im Erdgeschoß wurde das Pfarrhaus unterkellert. In den beiden darüber liegenden Stockwerken wurde die Raumaufteilung durch neue Korridore verändert. Alle sanitären Anlagen, Gas-, Wasser- und Stromleitungen, Türen, Fenster und Fußböden sowie die Heizanlage wurden vollständig erneuert. Die beiden Verbindungstrakte zwischen Pfarrhaus und Kirchengebäude erhielten durch ein neuerbautes Stiegenhaus und eine neuerbaute Sakristei eine veränderte Gestalt.
Im Zuge des Umbaus traten vorher nicht veranschlagte Kosten auf. Bei der Unterkellerung des Pfarrhauses mussten zuerst die aufgefundenen Fundamentreste des Königinklosters aus Bruchsteinmauerwerk mit Stemmarbeiten entfernt werden, außerdem die Feuermauer des Pfarrhauses nachträglich mit einem Fundament versehen werden. Die Bauarbeiten konnten zwar innerhalb des vorgesehenen Zeitraums am 3. Dezember 1887 abgeschlossen werden,[13] allerdings stiegen die Baukosten von den ursprünglich kalkulierten 6500 Gulden auf 56.239 Gulden an.[12]
Bauliche Veränderungen nach 1887
Nach dem Umbau von 1887 blieb die Reformierte Stadtkirche in ihren wesentlichen Grundzügen unverändert. 1895 wurden erstmals drei Glocken im Kirchturm angebracht, die nach ihren Stiftern benannt wurden: Christoph und Berta Cloeter[17] (die Eltern der Autorin Hermine Cloeter),[18] Philipp Ritter von Schoeller und Gemeindeglieder. Der Staat zog die Glocken 1916 im Zuge des Ersten Weltkriegs zur Schmelzung ein. Nach einer Sammlung unter den Gemeindemitgliedern wurden 1932 von der Glockengießerei Pfundner erneut drei Glocken gegossen, von denen während des Zweiten Weltkriegs die beiden größeren eingeschmolzen wurden. Nach einer Spende des Presbyters Karl Matysek goss die Glockengießerei Grassmayr 1979 zwei weitere Glocken und die eine erhaltene Glocke neu.
Innen- oder Außenrenovierungen erfolgten zunächst 1901 und 1906, in der Zwischenkriegszeit 1928 und 1934 sowie im besetzten Österreich 1952 und 1953. Eine umfassende Innen-Restaurierung 1962 stand im Zeichen einer Annäherung an die ursprüngliche klassizistische Gestalt der Kirche, wobei unter anderem Teile der originalen Wandmalereien freigelegt wurden.[17] Von 1979 bis 1984 wurde der gesamte Gebäudekomplex restauriert.[19] Die Reformierte Stadtkirche wurde im April 1997 das erste Kirchengebäude in Österreich mit einer Photovoltaikanlage. Die am Kirchendach angebrachte, 30 Quadratmeter große Solaranlage hat einen jährlichen Stromertrag von rund 2800 Kilowattstunden.[20] Die letzte Außen-Restaurierung der Kirche wurde 1999 durchgeführt.[19] Im Sommer 2006 wurden der Kircheninnenraum saniert sowie Gemeindesaal, Küche und Toilettenanlagen renoviert.[21]
Nutzungsgeschichte
Die Reformierte Stadtkirche ist nicht nur der Sitz der Evangelischen Pfarrgemeinde H. B. Wien Innere Stadt, sondern auch Sitz der Kirchenleitung der Evangelischen Kirche H. B. in Österreich, des Oberkirchenrats H. B.,[22] und dessen Kirchenzeitung, des Reformierten Kirchenblatts.[23] Die regulären Sonntagsgottesdienste beginnen seit Anfang der Gemeindegeschichte immer um zehn Uhr.
In den ersten Jahrzehnten des Bestehens feierte die Gemeinde um den 13. Oktober das Toleranzfest, das an das Toleranzpatent Kaiser Josephs II. vom 13. Oktober 1781 erinnerte. Im Revolutionsjahr 1848 wurde diese Tradition aufgegeben und stattdessen ein Gottesdienst anlässlich des Reformationstags am 31. Oktober eingeführt. Weitere allgemein verbreitete christliche Festtagsgottesdienste gibt es in der Reformierten Stadtkirche erst seit der zweiten Hälfte des 20. Jahrhunderts: Die Christmette wird seit 1957 und die Osternacht seit 1972 jährlich begangen.[24] Der 1969 erstmals gefeierte Palmdonnerstagsgottesdienst findet immer am Donnerstag vor Palmsonntag statt. Zum Zeitpunkt seiner Einführung war er der einzige Gottesdienst in Wien, bei dem Angehörige anderer Konfessionen offiziell eingeladen wurden, am Abendmahl teilzunehmen.[25]
Es gab – und gibt – auch Gottesdienste in anderen Sprachen. Im Jahr 1851 begannen der Theologieprofessor Karol Kuzmány und seine Studenten, regelmäßig tschechischsprachige Gottesdienste in der Reformierten Stadtkirche abzuhalten. Diese Tradition wurde von dem aus Preußisch-Schlesien stammenden und 1867 nach Wien berufenen Oberkirchenrat Heřman z Tardy fortgeführt. Tardy initiierte 1891 einen Verein mit dem Ziel, eine eigene tschechische reformierte Gemeinde zu gründen und ein eigenes Gemeindezentrum zu errichten. Dieses Vorhaben wurde durch den allgemeinen finanziellen Kollaps nach dem Ersten Weltkrieg vereitelt. Tschechischsprachige Gottesdienste fanden noch bis 1945 regelmäßig und bis 1969 fallweise statt.
Zwei Gastprediger hielten ferner von 1868 bis kurz vor dem Ersten Weltkrieg jeden Sonntag nach dem deutschsprachigen Gottesdienst einen französischsprachigen ab.[26] Seit Beginn des 20. Jahrhunderts gab es zeitweise ungarischsprachige Gottesdienste in der Reformierten Stadtkirche, die in der Regel von der Reformierten Kirche in Ungarn organisiert wurden. Die zahlreichen Flüchtlinge reformierter Konfession, die in Folge des Ungarischen Volksaufstands von 1956 nach Österreich kamen, gaben den Anlass zur Gründung des Ungarischen Seelsorgedienstes (USD), der als Werk der Evangelischen Kirche H. B. in Österreich organisiert ist.[27] Die Gottesdienste des USD in der Reformierten Stadtkirche finden jeden Sonntag um 17 Uhr statt.[28] Ebenfalls in der Reformierten Stadtkirche feiert die Vienna Community Church (VCC), ein 1957 gegründeter interkonfessioneller Verein, englischsprachige Gottesdienste, und zwar an jedem Sonntag um 12 Uhr.[29]
Die reformierte Gemeinde veranstaltet alljährlich im Innenhof einen karitativen Adventmarkt, genannt „Henriettenmarkt“. Er ist nach der reformierten Erzherzogin Henriette von Österreich benannt,[30] die 1816 in Wien einen mit Kerzen geschmückten Weihnachtsbaum aufstellen ließ, wie sie ihn aus ihrer Heimat Nassau-Weilburg kannte. Der zuvor in Wien unbekannte Brauch soll von Kaiser Franz I. in der Hofburg und von weiteren Wiener Adelsfamilien übernommen worden sein.[11] In der ersten Hälfte des 20. Jahrhunderts gab es mit dem Evangelisch-Reformierten Chorverein einen hauseigenen Kirchenchor, der ab 1924 von Fritz Schreiber geleitet wurde.
Die Reformierte Stadtkirche hat auch eine Tradition als Veranstaltungsort von Konzerten. Der blinde Hoforganist Josef Labor gab von 1905 bis 1907 mehrere Konzerte in der Kirche, in den 1930er Jahren sangen hier der Chor der Wiener Staatsoper, der Wiener Männergesang-Verein und die Mezzosopranistin Rosette Anday. In den 1980er Jahren traten regelmäßig die Mozart-Sängerknaben auf.[31] Bei der Kirchenrenovierung im Jahr 2006 wurde besonderes Augenmerk auf die „Konzertreife“ der Kirche gelegt. Zu diesem Zweck wurden eine Tonanlage eingerichtet, die Beleuchtung verbessert und der Abendmahlstisch mit Rollen versehen.[21] Von 2004 bis 2011 war die Reformierte Stadtkirche zudem alljährlich ein Veranstaltungsort des Filmfestivals Vienna Independent Shorts.[32]
Pfarrer und Gemeindeleitung
| Name | Amtszeit |
|---|---|
| Carl Wilhelm Hilchenbach | 1782–1816 |
| Johann Friedrich Schobinger | 1789–1790 |
| Carl Cleynmann | 1794–1815 |
| Justus Hausknecht | 1816–1834 |
| Carl Wilhelm Faesi | 1817–1829 |
| Gottfried Franz | 1829–1873 |
| Hermann Theodor Ernst | 1836–1861 |
| Cornelius August Wilkens | 1861–1879 |
| Carl Alphons Witz | 1874–1918 |
| Friedrich Otto Schack | 1880–1922 |
| Gustav Zwernemann | 1913–1946 |
| Johann Karl Egli | 1927–1952 |
| Hermann Noltensmeier | 1946–1963 |
| Hermann Rippel | 1956–1963 |
| Alexander Abrahamowicz | 1957–1990 |
| Peter Karner | 1965–2004 |
| Erwin Liebert | 1990–1995 |
| Johannes Langhoff | 1997–2017 |
| Harald Kluge | seit 2005 |
| Réka Juhász | seit 2017 |
In der Regel waren seit 1789 zwei Pfarrer zugleich in der Pfarrgemeinde angestellt. Die Pfarrer Carl Wilhelm Hilchenbach, Justus Hausknecht, Gottfried Franz, Friedrich Otto Schack, Gustav Zwernemann, Johann Karl Egli und Peter Karner bekleideten als (Landes-)Superintendenten außerdem das höchste Amt in der Evangelischen Kirche H. B. in Österreich. Der Pfarrer Hermann Rippel war Militärsuperintendent der Evangelischen Kirche A. u. H. B. in Österreich.[33] Gegenwärtig bekleiden Harald Kluge seit 2005 und Pfarrerin Réka Juhász seit 2017 das Amt in der Reformierten Stadtkirche.[34]
Die reformierte Gemeinde in Wien wurde seit ihrer Gründung 1782 bis zum Protestantenpatent von 1861 von einem vierköpfigen Vorsteher-Kollegium geleitet. Zu den Vorstehern der ersten Stunde zählten zwei einflussreiche Wiener Bankiers Schweizer Herkunft: Johann Heinrich Geymüller und der schon als Erbauer des Palais Fries-Pallavicini genannte Johann von Fries. Dessen Sohn Moritz von Fries wurde 1807 Mitglied des Vorsteher-Kollegiums, Geymüllers Neffe Johann Heinrich von Geymüller der Jüngere folgte 1819. Mit dem Industriellen Ludwig Brevillier wirkte ab 1841 eine weitere bekannte Persönlichkeit des Wirtschaftslebens des österreichischen Kaisertums als Vorsteher. Zu nennen ist ferner Hermann Bonitz, der sich als Philologe, Philosoph und Schulreformer in Wien und Berlin einen Namen machte und von 1860 bis 1861 Mitglied des Kollegiums war.
Ein Presbyterium unter dem Vorsitz eines Kurators trat 1861 an die Stelle des Vorsteher-Kollegiums. In der Reformierten Stadtkirche waren es in der Zeit bis zum Ersten Weltkrieg vor allem zwei Schweizer Naturforscher, die als Kuratoren das Gemeindeleben prägten. Johann Jakob von Tschudi amtierte von 1874 bis 1883. In seine Zeit fällt die Vorbereitung des Umbaus von 1887, der unter Karl Brunner-von Wattenwyl verwirklicht wurde, der von 1884 bis 1914 Kurator war.[33] Ab der zweiten Hälfte des 19. Jahrhunderts gehörten mehrere Mitglieder der rheinischen Unternehmerfamilie Schoeller der Gemeindeleitung an. Alexander von Schoeller eröffnete den Reigen, zunächst 1851 als einer der Vorsteher und ab 1862 als Presbyter. 1867 wurde an seiner Stelle Gustav Adolph von Schoeller zum Presbyter bestimmt, gefolgt von Philipp von Schoeller, der von 1889 bis 1915 als Presbyter wirkte. Noch 1919 wurde mit Paul Eduard von Schoeller ein Mitglied der Familie Schoeller ins Presbyterium gewählt.[35] Von 2005 bis 2017 war Peter Duschet Facharzt für Haut- und Geschlechtskrankheiten sowie Fachgruppenobmann der Fachärzte für Haut- und Geschlechtskrankheiten in der Ärztekammer für Wien Kurator der Gemeinde.[34][36][37] Zwischen 2017 und 2023 war Gabriele Jandrasits Kuratorin, seit Oktober 2023 ist Norbert Chytil Kurator.
Architektur
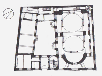
Lage und Grundriss
Die Reformierte Stadtkirche befindet sich an der Dorotheergasse 16 im Viertel zwischen Graben und Hofburg. Sie besteht aus dem eigentlichen Kirchengebäude und dem südlich davon gelegenen Pfarrhaus, die durch zwei Seitentrakte miteinander verbunden sind und einen trapezförmigen Innenhof einschließen. Im Westen grenzen die Fries’schen Zinshäuser und im Süden die Lutherische Stadtkirche an den Gebäudekomplex. Die Hauptfront des Kirchengebäudes und das Pfarrhaus liegen an der Dorotheergasse, während die nördliche Fassade des Kirchenraums entlang der Stallburggasse verläuft. Die Plankengasse bildet eine Sichtachse zwischen dem Kirchturm und dem Donnerbrunnen am Neuen Markt.[13]
Äußeres
Der Stil der zweizonigen Hauptfassade der Reformierten Stadtkirche ist neobarock. Die Hauptzone weist ionische Riesenpilaster auf. Das Hauptportal in der Mitte ist ein Metalltor. Die Fenster sind neobarock gerahmt. Am Mittelrisalit ist über der Portalachse ein Segmentgiebel angebracht, dem ein gebrochener Dreiecksgiebel übergeordnet ist. Eine Vasenbalustrade leitet zum mit toskanischen Eckpilastern versehenen Kirchturm über.[19] Der Turm hat eine Höhe von 42 Metern. Er ist bis zu einer Höhe von 30 Metern gemauert.[15] An seiner Spitze befindet sich über einem Knickgiebel ein hoher Laternenhelm, der mit Kupfer gedeckt ist.
Die hofseitige Seitenfassade ist original frühklassizistisch, während die Seitenfassade zur Stallburggasse beim Umbau von 1887 in Anlehnung an erstere gestaltet wurde. Beide weisen jeweils zwei großflächige Thermenfenster auf. Die Fassade zur Stallburggasse ist mit Mauerblenden gegliedert. Hier gibt es eine kleine Metalltür, die in ihrer Gestaltung dem Haupttor von 1887 ähnelt und die nicht mit dem 1815 eingebauten Henriettentor identisch ist, das nicht mehr besteht. An der dem Innenhof zugewandten Außenwand befinden sich die beiden frühklassizistischen ehemaligen Haupteingänge, die von toskanischen Halbsäulen und einem geraden Gebälk gerahmt werden.[19] Über den früheren Haupteingängen ist eine Kaiser Joseph II. gewidmete kreisrunde Gedenktafel angebracht. Ihr lateinischer Text geht auf einen Entwurf des Göttinger Professors Christian Gottlob Heyne zurück.[38]
Innenraum
Die Reformierte Stadtkirche gilt als bedeutendster klassizistischer Sakralraum in Wien. In der baulichen Grundstruktur handelt es sich um eine zweijochige Wandpfeilerkirche mit zwei flachen Pendentifkuppeln, oberhalb derer sich ein Dachstuhl befindet. Die ehemalige, halbkreisförmige Apsis ist seit dem Umbau von 1887 vom inneren Hauptportal durchbrochen, das einen Dreiecksgiebel aufweist. Darüber befindet sich die Orgelempore. An beiden Längsseiten setzt sich die Orgelempore in seitlichen Emporen mit jeweils zwei Tonnengewölben und Thermenfenstern beiderseits der Wandpfeiler fort. Die mit Balustraden ausgestatteten Emporen werden von insgesamt zehn toskanischen Säulen gestützt. Die beiden mit toskanischen Pilastern geschmückten Wandpfeiler sind auf den Ebenen des Erdgeschoßes und der Emporen jeweils von Durchgängen durchbrochen. Die Schmalseite mit der Kanzel ist triumphbogenartig gestaltet. Sie weist einen Korbbogen, innerhalb dessen eine Segmentbogen-Ädikula mit der Kanzel sowie geschichtete toskanische Pilaster auf. Dem Hauptraum ist an der Längsseite zur Stallburggasse ein Gang vorgelagert, an dessen Ende eine Wendeltreppe auf die Emporen führt. Zwischen innerem und äußerem Hauptportal zur Dorotheergasse befindet sich ein Vorraum. Beiderseits des inneren Hauptportals gibt es Seiteneingänge in den Hauptraum.[19] Nach dem Umbau von 1887 war ursprünglich vorgesehen, dass diese beiden Seiteneingänge einen nach Geschlechtern getrennten Zugang zur Kirche ermöglichen und dass das innere Hauptportal nur zu hohen Festtagen, zu Einsegnungen und Leichenbegängnissen geöffnet wird.[15] Zwei weitere Seitentore, die ehemaligen Hauptportale, verbinden den Kirchenraum direkt mit dem Innenhof.
Der Innenraum ist ohne Bilder und Kreuze gestaltet. Dies entspricht der strengen Auslegung des Zweiten Gebots in der reformierten Tradition. Die Grisaille-Wandmalereien ahmen Stuck in Form von Rosetten und Akanthusstäben nach.[19] In der dem Pariser Pantheón ähnelnden malerischen Gestaltung der Kuppeln à l’antica zeigt sich der Einfluss des französischen Klassizismus auf Nigelli, der in Paris studiert hatte.[39] Drei Wandsprüche mit goldfarbenen Buchstaben, die 1889 von der Familie Wittgenstein gespendet wurden, sind Bibelzitate: Oberhalb der Kanzel steht Dein Reich komme und an den Unterseiten der seitlichen Emporen Alles was Odem hat, lobe den Herrn halleluja! Ps. 150.6 sowie Selig sind, die Gottes Wort hören und bewahren. Luc. 11.28. An den Wänden im Bereich von Kanzel und Abendmahlstisch sind vier Gedenktafeln angebracht. Die älteste, auf 1822 datierte Tafel ist Pfarrer Carl Wilhelm Hilchenbach gewidmet und wird mit den Worten eingeleitet: „Dem thaetigen Befoerdrer dieses Baues, dem frommen Führer unsrer Seelen, dem Lehrer unsrer Jugend, dem Vater unsrer Armen“. Eine weitere Gedenktafel erinnert an den Umbau von 1887 und mehrere daran beteiligte Personen, darunter Architekt Ignaz Sowinski. Eine Marmorplatte aus dem Jahr 1925 gilt den im Ersten Weltkrieg gefallenen Gemeindemitgliedern und einer Ermahnung zum Frieden. Ihr Text wurde vom Theologieprofessor Josef Bohatec verfasst.[17] Die jüngste Gedenktafel stammt aus dem Jahr 2005. Sie nennt Zsigmond Varga sowie Ernst und Gisela Pollack stellvertretend für die in den Konzentrationslagern der Nationalsozialisten ermordeten Mitglieder der Kirche. Zsigmond Varga († 1945 im KZ Gusen) war Pfarrer der reformierten Ungarn in Wien. Ernst und Gisela Pollack († 1942 im KZ Theresienstadt) waren Wohltäter der Gemeinde.[40]
Pfarrhaus
Das dreigeschoßige frühklassizistische Pfarrhaus weist eine Straßenfassade zur Dorotheergasse und Innenhoffassaden auf. Die linke Seite der Straßenfassade tritt als zweiachsiger Seitenrisalit hervor. An den Fenstern sind Voluten-Konsolen und Fensterbrüstungen angebracht. Über beide Obergeschoße ziehen sich vertiefte Wandfelder. Im ersten Obergeschoß befinden sich unterhalb der Fenster Mäander-Friese. Das Straßenportal des Pfarrhauses ist gerade verdacht. Seine originale Holztür ist mit Festons verziert. An der Westseite des Innenhofs gibt es eine zweigeschoßige Loggia mit Rundbogen-Arkaden.
Die Einfahrt von der Dorotheergasse in den Innenhof weist auf Wandpfeilern ein kassettiertes Tonnengewölbe auf. Im Erdgeschoß sind der Gemeindesaal, die Wohnung des Küsters und die Sakristei untergebracht. Das erste Stockwerk beherbergt Büroräume der Pfarrgemeinde und der Gesamtkirche. Hier gibt es eine freigelegte Türrahmung, die als Rest des Königinklosters vom Ende des 16. Jahrhunderts stammt. Im zweiten Stockwerk befindet sich eine Pfarrerwohnung. Der Dachboden des Pfarrhauses stammt vom Ende des 18. Jahrhunderts. Das Pfarrhaus ist zwei Geschoße tief unterkellert. Zwei straßenseitige Räume im unteren Kellergeschoß weisen Kreuzgratgewölbe und Stichkappentonnen auf, deren Grate stark herausgeputzt sind.[19]
Einrichtung und Ausstattung
Kanzel, Abendmahlstisch und Kirchengestühl
Die Position der Kanzel im Zentrum der Wand, die vom Kirchengestühl aus in Blickrichtung gelegen ist, weist die Reformierte Stadtkirche als Predigtkirche aus. Die Predigt bildet den Mittelpunkt des Gottesdienstes.[24] Die halbrunde, frühklassizistische Kanzel stammt aus dem Jahr 1774. Sie steht auf toskanischen Säulen und Pilastern, die aus rötlichem Marmor gefertigt sind. An ihr sind vergoldete Akanthusornamente angebracht. Der Schalldeckel weist an der Unterseite einen Strahlenkranz rund um das Tetragramm auf.
Der Abendmahlstisch unterhalb der Kanzel ist ein Holztisch mit einer Platte aus rötlichem Marmor. Er ist mit vergoldeten Festons und Voluten-Konsolen verziert. Der Überlieferung nach wurde der Abendmahlstisch aus Teilen eines Altars aus der ehemaligen Kamaldulenserkirche am Kahlenberg zusammengesetzt.[19] Während der Koalitionskriege, im Jahr 1810, beschlagnahmte der Staat das gesamte Kirchensilber der Gemeinde und verwendete es als Kontribution an Frankreich. Das daraufhin neu angeschaffte Abendmahlsgeschirr aus feuervergoldetem Silber ist mit der Jahreszahl 1807 punziert. Es besteht aus einer Weinkanne, zwei Kelchen und einem Brotteller.[41]
Die hölzernen Kirchenbänke und Presbyterstühle stammen aus dem Jahr 1784.[19] Entsprechend der reformierten Tradition, die kein Niederknien im Gottesdienst vorsieht, weist das Kirchengestühl keine Kniebänke auf.[41] Unter den Kirchenbänken befinden sich Platten aus Kelheimer Kalkstein. Die für die Mitglieder des Presbyteriums vorgesehenen Presbyterstühle stehen beiderseits des Abendmahlstisches und sind durch frei aufgestellte Balustraden vom übrigen Kirchenraum abgetrennt.[19]
Glocken
Die drei Kirchturm-Glocken der Glockengießerei Grassmayr aus dem Jahr 1979 sind im Moll-Dreiklang Gis-H-Dis gestimmt. Sie tragen folgende Inschriften:
- Post tenebras lux
- Ich schäme mich des Evangeliums von Christo nicht, denn es ist eine Kraft Gottes, die da selig macht alle, die daran glauben.
- Si Deus pro nobis, quis contra nos.[17]
Orgel
Die erste Orgel in der Reformierten Stadtkirche wurde 1695 erbaut, stammte mutmaßlich aus einem aufgelassenen Kloster und wurde wahrscheinlich vom Wiener Orgelbauer Franz Xaver Christoph adaptiert. Sie wurde 1901 durch eine neue Orgel des Dresdner Orgelbauers Johannes Jahn ersetzt und nach Cilli verschenkt.[42] An der Jahn-Orgel, die zuletzt 1929 saniert worden war, konnten nach dem Zweiten Weltkrieg wegen Geldmangels keine grundlegenden Reparaturen durchgeführt werden. Sie war zuletzt in einem desolaten Zustand. Zudem befand sich ihr Spieltisch aus Platzgründen ungünstig an einer Schmalseite. Die nachfolgende Orgel ist ein Werk des Wiener Orgelbauers Herbert Gollini aus dem Jahr 1974. Gollini behielt das neoklassizistische Gehäuse der Jahn-Orgel bei und verwendete auch deren Pfeifen weiter. Die Gollini-Orgel ist eine mechanische Schleifladenorgel und verfügt über 25 Register, die auf zwei Manuale und Pedal verteilt sind.[43]
Ihre Disposition lautet:[44]
|
|
|
|||||||||||||||||||||||||||||||||||||||||||||||||||||||||||||||||||||||||||||||||||
- Koppeln: drei Normalkoppeln
- Spielhilfen: Koppeln, Schwelltritt
Zu den als Organisten in der Reformierten Stadtkirche angestellten Persönlichkeiten zählen Wilhelm Karl Rust (tätig 1819–1827), Ignaz Lachner (tätig 1827–1831), Benedict Randhartinger (tätig 1831–1835), Gottfried Preyer (tätig 1835–1841) und Eugen Gmeiner (tätig 1949–1956).[43]
Literatur
- Peter Karner (Hrsg.): Die evangelische Gemeinde H. B. in Wien (= Forschungen und Beiträge zur Wiener Stadtgeschichte. Band 16). Franz Deuticke, Wien 1986, ISBN 3-7005-4579-7.
- Die evangelische Kirche in der Dorotheergasse. In: Wiener Bauindustrie-Zeitung / Österreichische Bauzeitung, Jahrgang 1887, S. 66 (online bei ANNO).
- Der Umbau des Kirchen- und Pfarrgebäudes der Evangelischen Gemeinde Helvetischer Konfession in Wien. In: Allgemeine Bauzeitung, Jahrgang 1893, S. 87–88 (online bei ANNO).
Weblinks
Einzelnachweise
- ↑ Hermann Rippel: Die holländische Gesandtschaftskapelle als Vorgängerin der reformierten Gemeinde in Wien. In: Peter Karner (Hrsg.): Die evangelische Gemeinde H. B. in Wien (= Forschungen und Beiträge zur Wiener Stadtgeschichte). Band 16. Franz Deuticke, Wien 1986, ISBN 3-7005-4579-7, S. 27–29.
- ↑ Peter Karner: Die Gründung der Evangelischen Gemeinde H. C. zu Wien. In: Peter Karner (Hrsg.): Die evangelische Gemeinde H. B. in Wien (= Forschungen und Beiträge zur Wiener Stadtgeschichte). Band 16. Franz Deuticke, Wien 1986, ISBN 3-7005-4579-7, S. 53–54.
- 1 2 3 4 Martha Grüll: Die reformierte Stadtkirche in der Dorotheergasse. In: Peter Karner (Hrsg.): Die evangelische Gemeinde H. B. in Wien (= Forschungen und Beiträge zur Wiener Stadtgeschichte). Band 16. Franz Deuticke, Wien 1986, ISBN 3-7005-4579-7, S. 105–106.
- ↑ Friedrich Nicolai: Beschreibung einer Reise durch Deutschland und die Schweiz im Jahre 1781. Nebst Bemerkungen über Gelehrsamkeit, Industrie, Religion und Sitten. Zweiter Band. Berlin/Stettin 1783, S. 641.
- 1 2 3 Gottlieb Nigelli. In: Architektenlexikon Wien 1770–1945. Herausgegeben vom Architekturzentrum Wien. Wien 2007. Abgerufen am 7. Dezember 2013.
- ↑ Peter Karner: Die Gründung der Evangelischen Gemeinde H. C. zu Wien. In: Peter Karner (Hrsg.): Die evangelische Gemeinde H. B. in Wien (= Forschungen und Beiträge zur Wiener Stadtgeschichte). Band 16. Franz Deuticke, Wien 1986, ISBN 3-7005-4579-7, S. 51.
- ↑ Baumeister (Pseudonym): Über das Bethaus der reformierten Gemeinde, nebst einer Kritik über den Gräfl. Friesischen Pallast auf dem Josephsplatze. Gewidmet allen Bauliebhabern und Befördern des guten Geschmacks. Wien 1784. Zitiert nach: Hermann Burg: Der Bildhauer Franz Anton Zauner und seine Zeit. Ein Beitrag zur Geschichte des Klassizismus in Österreich. Mit 10 Tafeln und 70 Abbildungen im Texte. Anton Schroll & Co, Wien 1915, S. 61.
- ↑ Baumeister (Pseudonym): Über das Bethaus der reformierten Gemeinde, nebst einer Kritik über den Gräfl. Friesischen Pallast auf dem Josephsplatze. Gewidmet allen Bauliebhabern und Befördern des guten Geschmacks. Wien 1784. Zitiert nach: Martha Grüll: Die reformierte Stadtkirche in der Dorotheergasse. In: Peter Karner (Hrsg.): Die evangelische Gemeinde H. B. in Wien (= Forschungen und Beiträge zur Wiener Stadtgeschichte). Band 16. Franz Deuticke, Wien 1986, ISBN 3-7005-4579-7, S. 110.
- ↑ Antibaumeister (Pseudonym): Baumeister als Wiens Trasyllus mit einer Prüfung der Apotheosis seines Lieblingsarchitekten. Mit beygelegtem Plane des Gräflich-Friesischen Hauses und der Kalvinistischen Kirche. Wien 1784. Zitiert nach: Martha Grüll: Die reformierte Stadtkirche in der Dorotheergasse. In: Peter Karner (Hrsg.): Die evangelische Gemeinde H. B. in Wien (= Forschungen und Beiträge zur Wiener Stadtgeschichte). Band 16. Franz Deuticke, Wien 1986, ISBN 3-7005-4579-7, S. 107.
- ↑ Peter Karner: Evangelisch in Wien. In: Peter Karner (Hrsg.): Die evangelische Gemeinde H. B. in Wien (= Forschungen und Beiträge zur Wiener Stadtgeschichte). Band 16. Franz Deuticke, Wien 1986, ISBN 3-7005-4579-7, S. 213.
- 1 2 3 Monika Posch: Henriette von Nassau-Weilburg. Eine Protestantin im Hause Habsburg. In: Peter Karner (Hrsg.): Die evangelische Gemeinde H. B. in Wien (= Forschungen und Beiträge zur Wiener Stadtgeschichte). Band 16. Franz Deuticke, Wien 1986, ISBN 3-7005-4579-7, S. 75–76.
- 1 2 3 Martha Grüll: Die reformierte Stadtkirche in der Dorotheergasse. In: Peter Karner (Hrsg.): Die evangelische Gemeinde H. B. in Wien (= Forschungen und Beiträge zur Wiener Stadtgeschichte). Band 16. Franz Deuticke, Wien 1986, ISBN 3-7005-4579-7, S. 111–113.
- 1 2 3 4 5 6 Der Umbau des Kirchen- und Pfarrgebäudes der Evangelischen Gemeinde Helvetischer Konfession in Wien. In: Allgemeine Bauzeitung, Jahrgang 1893, S. 87 (online bei ANNO).
- 1 2 Ignaz Stanislaus Sowinski. In: Architektenlexikon Wien 1770–1945. Herausgegeben vom Architekturzentrum Wien. Wien 2007. Abgerufen am 7. Dezember 2013.
- 1 2 3 4 Die evangelische Kirche in der Dorotheergasse. In: Wiener Bauindustrie-Zeitung / Österreichische Bauzeitung, Jahrgang 1887, S. 66 (online bei ANNO).
- ↑ Peter Stachel: Albert Ilg und die „Erfindung“ des Barocks als österreichischer „Nationalstil“. In: Moritz Czáky, Federico Celestini, Ulrich Tragatschnig (Hrsg.): Barock. Ein Ort des Gedächtnisses. Interpretament der Moderne/Postmoderne. Böhlau, Wien/Köln/Weimar 2007, ISBN 978-3-205-77468-6, S. 104–105.
- 1 2 3 4 Martha Grüll: Die reformierte Stadtkirche in der Dorotheergasse. In: Peter Karner (Hrsg.): Die evangelische Gemeinde H. B. in Wien (= Forschungen und Beiträge zur Wiener Stadtgeschichte). Band 16. Franz Deuticke, Wien 1986, ISBN 3-7005-4579-7, S. 115–117.
- ↑ Gudrun Wedel: Autobiographien von Frauen. Ein Lexikon. Böhlau, Köln/Weimar/Wien 2010, ISBN 978-3-412-20585-0, S. 155.
- 1 2 3 4 5 6 7 8 9 10 Bundesdenkmalamt (Hrsg.): Dehio-Handbuch Wien. I. Bezirk – Innere Stadt. Berger, Horn/Wien 2003, ISBN 3-85028-366-6, S. 54–55.
- ↑ Viktor Schlosser: Strom vom Himmel. Universität Wien, 21. Juni 2005, abgerufen am 3. September 2013.
- 1 2 Renovierung der Kircheninnenräume Sommer 2006. Evangelische Pfarrgemeinde H. B. Wien Innere Stadt, archiviert vom (nicht mehr online verfügbar) am 13. Dezember 2013; abgerufen am 17. Oktober 2020.
- ↑ Impressum – Evangelische Kirche H.B. in Österreich. Abgerufen am 17. Oktober 2020.
- ↑ Impressum. In: Reformiertes Kirchenblatt. Nr. 9, September 2013, S. 12.
- 1 2 Peter Karner: Gottesdienste. In: Peter Karner (Hrsg.): Die evangelische Gemeinde H. B. in Wien (= Forschungen und Beiträge zur Wiener Stadtgeschichte). Band 16. Franz Deuticke, Wien 1986, ISBN 3-7005-4579-7, S. 156–157.
- ↑ Peter Karner: Ökumene in Wien. In: Peter Karner (Hrsg.): Die evangelische Gemeinde H. B. in Wien (= Forschungen und Beiträge zur Wiener Stadtgeschichte). Band 16. Franz Deuticke, Wien 1986, ISBN 3-7005-4579-7, S. 232.
- ↑ Peter Karner: Gottesdienste. In: Peter Karner (Hrsg.): Die evangelische Gemeinde H. B. in Wien (= Forschungen und Beiträge zur Wiener Stadtgeschichte). Band 16. Franz Deuticke, Wien 1986, ISBN 3-7005-4579-7, S. 160–161.
- ↑ Peter Karner: Gottesdienste. In: Peter Karner (Hrsg.): Die evangelische Gemeinde H. B. in Wien (= Forschungen und Beiträge zur Wiener Stadtgeschichte). Band 16. Franz Deuticke, Wien 1986, ISBN 3-7005-4579-7, S. 162–163.
- ↑ Ausztriai Magyar Református Lelkigondozó Szolgálat. Abgerufen am 17. Oktober 2020.
- ↑ Vienna Community Church: About us (englisch) ( vom 28. Februar 2014 im Internet Archive)
- ↑ Der Henriettenmarkt. Altwiener Advent im Hof der Reformierten Stadtkirche. Evangelische Pfarrgemeinde H. B. Wien Innere Stadt, archiviert vom (nicht mehr online verfügbar) am 13. Dezember 2013; abgerufen am 17. Oktober 2020.
- ↑ Klaus Hehn: Musik in der Reformierten Stadtkirche. In: Peter Karner (Hrsg.): Die evangelische Gemeinde H. B. in Wien (= Forschungen und Beiträge zur Wiener Stadtgeschichte). Band 16. Franz Deuticke, Wien 1986, ISBN 3-7005-4579-7, S. 122–123.
- ↑ Eva Müller, Julie Metzdorff, Barbara Kraml: Einreich-Rekord bei VIS 2011. Presseinformation. (PDF; 74 kB) Vienna Independent Shorts, 18. Februar 2011, archiviert vom (nicht mehr online verfügbar) am 11. Dezember 2013; abgerufen am 7. Dezember 2013. Info: Der Archivlink wurde automatisch eingesetzt und noch nicht geprüft. Bitte prüfe Original- und Archivlink gemäß Anleitung und entferne dann diesen Hinweis.
- 1 2 Peter Karner (Hrsg.): Die evangelische Gemeinde H. B. in Wien (= Forschungen und Beiträge zur Wiener Stadtgeschichte. Band 16). Franz Deuticke, Wien 1986, ISBN 3-7005-4579-7, S. 237–238.
- 1 2 Evangelische Pfarrgemeinde H. B. Wien Innere Stadt: Wir. Menschen in der Reformierten Stadtkirche ( vom 13. Dezember 2013 im Internet Archive)
- ↑ Peter Karner: Mitglieder der reformierten Gemeinde. In: Peter Karner (Hrsg.): Die evangelische Gemeinde H. B. in Wien (= Forschungen und Beiträge zur Wiener Stadtgeschichte). Band 16. Franz Deuticke, Wien 1986, ISBN 3-7005-4579-7, S. 88.
- ↑ Praxisplan Dr. Peter Duschet, Seite auf praxisplan.at, Website der Ärztekammer für Wien, abgerufen am 22. August 2016.
- ↑ Fachgruppenobmänner / -frauen und StellvertreterInnen ( vom 23. August 2016 im Internet Archive), Website der Ärztekammer für Wien, abgerufen am 17. Oktober 2020.
- ↑ Helmut Riege (Hrsg.): Klopstock Briefe 1783–1794. Band 2: Apparat/Kommentar (= Hamburger Klopstock-Ausgabe. Briefe Band VIII). Walter de Gruyter, Berlin/New York 1999, S. 386.
- ↑ Johann-Friedrich Albert Graf von der Schulenburg: Sakralbauten unter dem Toleranzpatent in der Wiener Innenstadt. Diplomarbeit. Universität Wien, 2009, S. 43–44.
- ↑ 31. Oktober 2005 – Enthüllung der Gedenktafel für Opfer des Nationalsozialismus aus der Gemeinde. Evangelische Pfarrgemeinde H. B. Wien Innere Stadt, 2005, archiviert vom (nicht mehr online verfügbar) am 13. Dezember 2013; abgerufen am 17. Oktober 2020.
- 1 2 Peter Karner: Gottesdienste. In: Peter Karner (Hrsg.): Die evangelische Gemeinde H. B. in Wien (= Forschungen und Beiträge zur Wiener Stadtgeschichte). Band 16. Franz Deuticke, Wien 1986, ISBN 3-7005-4579-7, S. 158–159.
- ↑ Elisabeth Fritz-Hilscher: Das 19. Jahrhundert (circa 1790/1800 bis 1918). In: Elisabeth Th. Fritz-Hilscher, Helmut Kretschmer (Hrsg.): Wien. Musikgeschichte. Von der Prähistorie bis zur Gegenwart. LIT, Wien 2011, ISBN 978-3-643-50368-8, S. 324.
- 1 2 Klaus Hehn: Musik in der Reformierten Stadtkirche. In: Peter Karner (Hrsg.): Die evangelische Gemeinde H. B. in Wien (= Forschungen und Beiträge zur Wiener Stadtgeschichte). Band 16. Franz Deuticke, Wien 1986, ISBN 3-7005-4579-7, S. 119.
- ↑ Orgel in der Evang. Reform. Stadtkirche H. B. In: orgelmusik.at. Archiviert vom (nicht mehr online verfügbar) am 13. Dezember 2013; abgerufen am 17. Oktober 2020.
License Information of Images on page#
| Image Description | Credit | Artist | License Name | File |
|---|---|---|---|---|
| The Wikimedia Commons logo, SVG version. | Original created by Reidab ( PNG version ) SVG version was created by Grunt and cleaned up by 3247 . Re-creation with SVG geometry features by Pumbaa , using a proper partial circle and SVG geometry features. (Former versions used to be slightly warped.) | Reidab , Grunt , 3247 , Pumbaa | Datei:Commons-logo.svg | |
| Dorotheergasse evang. Kirche | Eigenes Werk | Thomas Ledl | Datei:Dorotheergasse evang. Kirche.jpg | |
| Double portrait of Moritz Christian Johann, Graf von Fries (1777-1825/6) and his wife Maria Theresia Josepha, Prinzessin zu Hohenlohe Waldenburg-Schillingsfürst (1779-1819), in a black dress and a yellow Indian shawl, in a portico | http://www.artnet.com/Artists/LotDetailPage.aspx?lot_id=AFBAEBFDBF1E612E | Jean-Laurent Mosnier (1743–1808) | Datei:Double portrait of Moritz Christian Johann, Graf von Fries and his wife.jpg | |
| Karol Kuzmány , Lithographie von Josef Kriehuber, 1866 | Eigenes Foto einer Originallithographie | Josef Kriehuber | Datei:Karl Kuzmany.jpg | |
| Das ehemalige Nonnenkloster zu St.Maria, Königin der Engel . Nach der in Herzogs Cosmographia Franzciscana enthaltenen Vogelperspective vom Jahr 1740 | http://www.stadtkirche.at/Jubiläumsbroschüre/Jubiläumsbroschüre%20(2008-11-20)%20-%201%20Vorgeschichte.pdf | J.W. Zim???. | Datei:Königinkloster.JPG | |
| Piktogramm zum Kennzeichnen von Informationen bei einer Wahl/Abstimmung. | Own illustration, 2007 | Arne Nordmann ( norro ) | Datei:Pictogram voting info.svg | |
| Das Zeichen wird dazu genutzt, besonders gut geschriebene Artikel in der deutschsprachigen Wikipedia zu kennzeichnen | File:Qsicon exzellent.png | User:Niabot | Datei:Qsicon Exzellent.svg | |
| Innenraum der Reformierten Stadtkirche in Wien, Blick auf die Empore. | Eigenes Werk | Funke | Datei:Ref Stadtk Emporen.jpg | |
| Kanzel der Reformierten Stadtkirche in Wien. | Eigenes Werk | Funke | Datei:Ref Stadtk Kanzel.jpg | |
| Kuppel der Reformierten Stadtkirche in Wien. | Eigenes Werk | Funke | Datei:Ref Stadtk Kuppel.jpg |


